Maris MRG 610-52

Ürün Kodu 114.0661.642 Maris, Tezgah üstü, 560x510 mm, matt black, tek gözlü granit eviye

Kategoriler : FRANKE, EVİYELER

Etiketler : FRANKE, EVİYELER


Ürün Bilgisi

EAN/UPC 7612986112870

Eviye tipi Hazne (süzgeç yok)

Malzeme tipi Granit

Hazne sayısı 1

Renk Mat siyah

Yüzey Hiçbiri


Özellikler

Damlalık Sayısı Damlalıksız

Yönü Değiştirilebilir Damlalık Hayır

Armatür deliği Evet

Atık kiti dahil Evet

Sifon Kumanda Tipi Manuel

Sifon kumandası dahil Evet

Armatür deliği sayısı 3 - delik yeri hazır

Sıvı sabunluk deliği Hayır


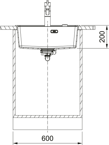
Boyutlar

Dış ölçü: sağdan sola 560 mm

Dış ölçü: önden arkaya 510 mm

Hazne 1 ölçüsü : sağdan sola 520 mm

Hazne 1 ölçüsü : önden arkaya 400 mm

Hazne 1: derinlik 200 mm

Kesim ölçüsü : sağdan sola 540 mm

Kesim ölçüsü : önden arkaya 498 mm


Kurulum

Minimum alt dolap ölçüsü 60 cm


Ürün Tanımlama

Marka Franke

Ürün ailesi Maris

Model aralığı Maris

Sertifikası CE


Ürün Özellikleri

Kurulum tipi Tezgah üstü

Atık çıkışı 3 1/2"

Süzgeç pozisyonu Damlalıksız

MENÜ
KAPAT